
- Lieu : St-Michel-de-Maurienne (73)
- Altitude : 870 m
- Type : habitat individuel continu
- Surface habitable : 60 m²
- Nature du projet : travaux sur construction existante
- Maîtrise d’ouvrage : privée
- Mission : partielle > déclaration préalable
- Statut : obtenu / réalisé
- Durée des études : 3 mois
- Programme : restructuration des espaces intérieurs, création d’ 1 unité de vie + 1 bureau + 1 chambre supplémentaire avec mezzanine.

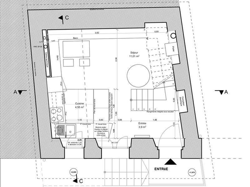
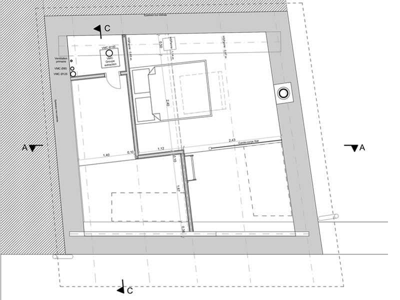
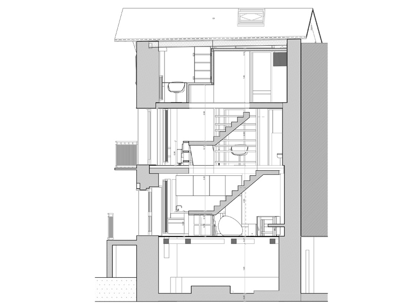
La Maison Verticale se situe dans l’un des hameaux surplombant Saint-Michel- de-Maurienne à 870 m d’altitude. Accolée à d’autres constructions sur deux de ses façades, elle dispose d’une façade unique orientée favorablement au sud. La rénovation a donc consisté à restructurer les différents espaces et notamment la desserte verticale des quatre niveaux d’une quinzaine de m² chacun.
Auparavant, des escaliers inconfortables aux emmarchements variables et aux trémies irrégulières ne favorisaient pas l’utilisation ergonomique de cet espace restreint. Les espaces ont été étudiés de manière à privilégier leur compacité tout en favorisant le confort et l’intimité nécessaire à chaque espace.
La maison présentait une thermicité satisfaisante de part sa mitoyenneté et l’épaisseur de ses murs. Ces derniers ont été doublés par l’intérieur pour rattraper les irrégularités. Le gros-oeuvre n’a pas été retouché à l’exception de l’agrandissement de la fenêtre de la cuisine.
L’escalier comme un meuble
Conçu comme un meuble à part entière sur chacun des niveaux, il permet d’optimiser au mieux l’espace disponible : le palier intermédiaire, surélevé de quelques marches, permet de délimiter un hall d’entrée, tout en abritant des rangements. Le palier d’arrivée, quant à lui, permet de ménager une plate-forme de repos face aux niches de rangements, creusées dans le mur épais.
Le travail de la lumière
Le défi de cette rénovation consistait également à faire rentrer un maximum de lumière dans cette construction mono-orientée. Les espaces de travail sont donc placés au plus proche de la façade alors que les espaces intimes sont positionnés en retrait. Les trémies ont été élargies et se superposent d’un étage à l’autre pour créer un puits de lumière. Les escaliers, sans contremarches, favorisent la circulation de la lumière naturelle.







